N07345 | Byt 1 + KK se zahradou G

Slovanská, Děčín
1 500 000 Kč (za nemovitost)
včetně provize

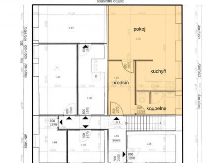
Menší byt v osobní vlastnictví o podlahové ploše 39,1 m2 se nachází v přízemí malého bytového domu ve kterém jsou celkem 3 byty. Jednotka je dispozičně rozdělena na chodbu, hlavní obytný prostor s hezkým kuchyňským koutem a koupelnu. Byt je v dobrém technickém stavu, kuchyňská linka s vestavěnými spotřebiči. Příslušenství bytu tvoří sklad v přízemí domu a velká společná prádelna. Majitelé bytu mohou užívat krásnou zahradu se zahradním altánem a grilem. Vytápění bytu je podlahové a elektrické přímotopy..

Oblíbená residenční část Děčína, školka, základní škola a veškerá občanská vybavenost v docházkové vzdálenosti.

  • Dispozice bytu:1+kk
  • Podlaží v domě:3
  • Počet podlaží v domě:3
  • Celková podlahová plocha:39 m2
  • Druh objektu:montovaná
  • Stav objektu:velmi dobrý
  • Vlastnictví:osobní
  • Umístění objektu:klidná část obce
  • Doprava:vlak; silnice; MHD; autobus
  • Elektřina:Elektro - 230 V; Elektro - 380 V
  • Voda:Rozvod studené a teplé vody
  • Plyn:Plynovod
  • Topení:Ústřední - plynové
  • Odpad:Kanalizace
  • Energetická náročnost budovy:G - Mimořádně nehospodárná
  • Energetický ukazatel
    podle vyhlášky:
    č. 264/2020 Sb.
  • Předzahrádka:434 m2


Prodávající makléř

Penelope

Martin Tonder

Kontaktní formulář