N07343 | Zrekonstruovaný byt 4+1 s terasou, zahradou a parkovacím místem G

Slovanská, Děčín
4 890 000 Kč (za nemovitost)
včetně provize

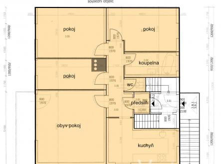
Prostorný byt v osobním vlastnictví po celkové rekonstrukci o podlahové ploše 95 m2 se nachází v 1. patře bytového domu. Byt je po celkové rekonstrukci, nová koupelna, nová kuchyně s vestavěnými spotřebiči a inteligentním osvětlením, nové rozvody elektřiny, podlahové vytápění, rozvody klimatizace, obložkové dveře a nové podlahy. Jednoduchá a hezká dispozice bytu, obývací pokoj s velkou prosklenou stěnou a vstupem na prostornou terasu s výhledem na celý Děčín, dále po schodišti vstup na krásnou zahradu s altánem a grilem. Zastřešené parkovací místo přímo u domu. K bytu náleží praktické příslušenství v přízemí domu sklad a velká společná prádelna. Ústřední vytápění plynovým kotlem nebo tepelným čerpadlem.

Oblíbená residenční část Děčína, školka, základní škola a veškerá občanská vybavenost v docházkové vzdálenosti.

  • Dispozice bytu:4+1
  • Podlaží v domě:1
  • Počet podlaží v domě:3
  • Celková podlahová plocha:95 m2
  • Druh objektu:montovaná
  • Stav objektu:velmi dobrý
  • Vlastnictví:osobní
  • Druh bytu:Byt v rodinném domě
  • Umístění objektu:klidná část obce
  • Doprava:vlak; silnice; MHD; autobus
  • Elektřina:Elektro - 230 V; Elektro - 380 V
  • Voda:Vodovod; Rozvod studené a teplé vody
  • Plyn:Plynovod
  • Topení:Ústřední - plynové; Jiné
  • Odpad:Kanalizace
  • Energetická náročnost budovy:G - Mimořádně nehospodárná
  • Energetický ukazatel
    podle vyhlášky:
    č. 264/2020 Sb.
  • Plocha terasy:6 m2
  • Předzahrádka:434 m2
  • Počet parkovacích míst:1


Prodávající makléř

Penelope

Martin Tonder

Kontaktní formulář